Ovens
All views: 135 Today number of views: 2
- Listing ID:
- 88
- Type:
- Sell
- Property type:
- house
- Address:
- Ovens, Allendale, Grange, Ovens, Co. Cork
- Price:
- € 1 Million Euro Sale
- Description:
We are delighted to offer this superb 7-bedroom detached residence c. 3,650 sq. ft (340 Sq. m), built in 2007, with a detached 2 storey garage c. 990 Sq. ft (92 Sq. m), perfectly positioned in a popular and most sought-after location of Ovens.
Allendale is approached through secure electric gates, with a sweeping driveway to a gravelled parking area. It gives a wonderful sense of arrival and sets the tone for this superb property.
Impeccably maintained this residence is presented in pristine condition boasting stunning craftmanship throughout. The residence has an extensive landscaped south facing rear garden, making it ideal for modern, flexible family living.
Located 12 minutes from Cork City Centre, 5 minutes from Ballincollig Town Centre, 12 minutes to Cork Airport and 12 minutes to the Jack Lynch Tunnel.
Hallway 5.20 x 5.44 Warm and inviting entrance hallway with access to all accommodation. Magnificent feature staircase with double entry to the first-floor accommodation.
Reception Room 6.35 x 4.48 Spacious reception room with front and side aspect windows offering plenty of natural light and stunning views of the front garden. Feature insert stove with marble surround. This is the perfect space to spend time with family.
Bedroom 2 4.48 x 4.05 Large double bedroom with front aspect windows looking out into the beautiful front gardens, original brick walls and access to walk in closet and En-Suite.
Walk in Wardrobe 2.08 x 1.75 Front aspect window with fitted shelving offering ample storage.
En-Suite 2.66 x 1.30 Tiled flooring, partly tiled walls, window to side, WC, WHB, large standalone shower unit, fitted mirror and towel rail.
Open Plan Kitchen 4.86 x 3.73 Fully fitted kitchen with tiled flooring and splashback, original brick walls, spotlights, rear aspect windows overlooking the fantastic south facing rear garden. Integrated appliances include a Norde Mende dishwasher, Waterford oven, hob and a stainless-steel extractor fan, Samsung American style fridge freezer, white ceramic Belfast sink and a Stanley stove. Cream fitted units with ample storage, coving, access to Utility, Family Room and rear access to patio area.
Dining 4.19 x 3.74 Bright and spacious dining area with spotlights and access to the family room and rear garden.
Conservatory 4.73 x 4.18 Sun filled room with plenty of natural light and panoramic views of the beautiful garden. Rear access to the patio area.
Family Room 3.98 x 3.68 Tiled flooring with side and rear aspect windows offering plenty of light, feature open fire and double door access to the south facing rear garden. This is the perfect place for relaxing in front of the fire on those cold winter nights.
Utility 3.08 x 2.97 Tiled flooring, fitted cream units with ample storage, stainless steel sink, rear aspect window offering plenty of natural light and plumbed for a washing machine.
Guest WC 2.97 x 1.46 Tiled flooring, partly tiled walls, standalone spacious shower unit, WC, WHB, side aspect window and fitted mirror.
Stairs & Landing 5.59 x 5.61 Impressive double entry stairway leading to either side of the accommodation. Front aspect windows on landing offering plenty of natural light.
Master Bedroom 4.10 x 3.89 Bright and spacious double bedroom with rear aspect windows overlooking the stunning rear garden and feature wallpaper.
Walk in Wardrobe 2.35 x 1.38 Walk in wardrobe with fitted shelving offering ample storage. Access to En-Suite.
En-Suite 2.34 x 2.05 Spacious with tiled flooring, partly tiled walls, standalone shower unit, WC, WHB, fitted mirror, heated towel rail and a rear aspect window offering plenty of natural light.
Bedroom 4 4.16 x 3.80 Bright and spacious double bedroom with rear aspect windows offering plenty of natural light and beautiful views of the south facing rear garden. Fitted wardrobes with ample storage.
Bedroom 5 3.52 x 3.49 Double bedroom with rear aspect windows boasting stunning views of the rear garden.
Walk in Closet 2.15 x 1.33 Walk in Closet with fitted shelving offering ample storage.
Family Bathroom 1 3.53 x 2.62 Large 3-piece suite with a jacuzzi bath and bidet. Tiled flooring and partly tiled walls, towel rail, fitted mirror, vanity unit and a rear aspect window offering plenty of light.
Bedroom 6 8.19 x 2.72 Double bedroom with a front aspect window.
Walk in Closet 1.58 x 0.98 Walk in Closet with fitted shelving offering ample storage.
Bedroom 7 8.84 x 8.19 Double bedroom with a front aspect window, fitted cream units and drawers offering ample storage.
Storage Closet 1.88 x 1.28 Shelved with ample storage.
Family Bathroom 2 8.09 x 2.04 Tiled flooring, partly tiled walls, standalone shower unit, WC, WHB, heated towel rail, fitted mirror and a side aspect window.
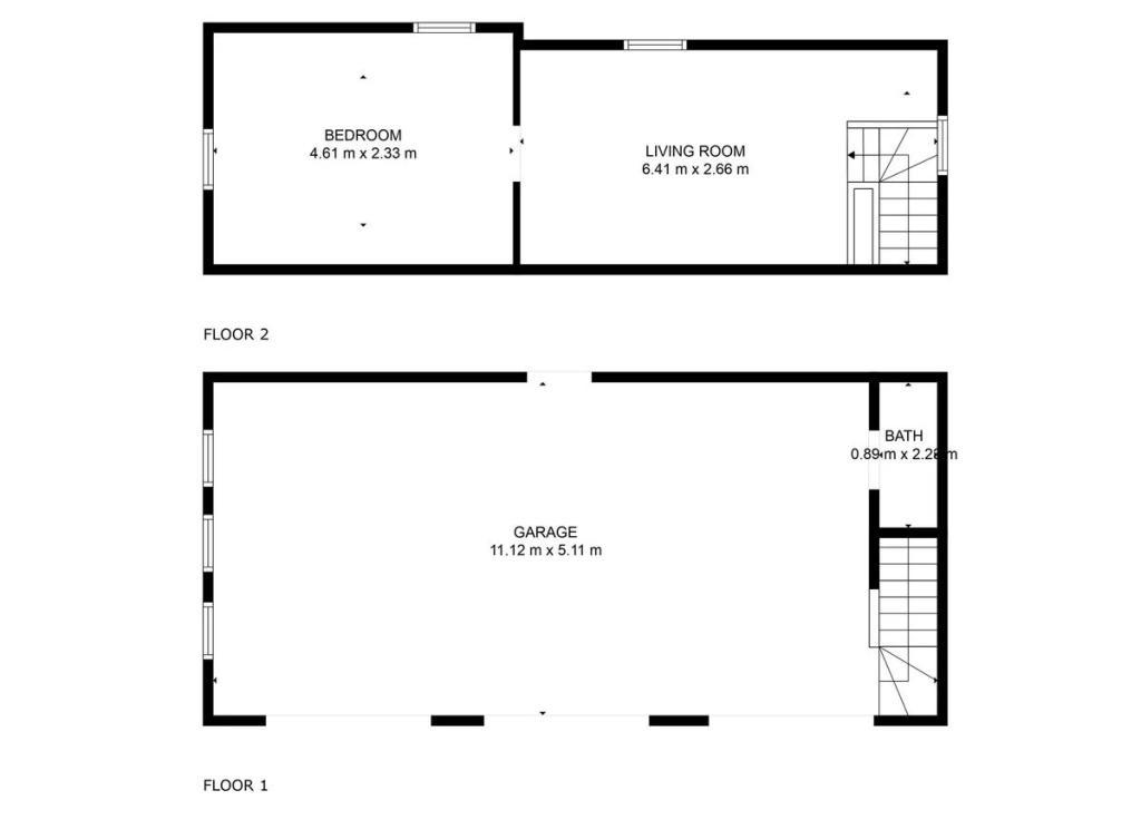
Detached Garage
Ground Floor: This two-storey garage c. 990 sq. ft offers a triple garage for secure parking. Whether its sailing, golfing, cycling, or painting, this room provides ideal storage for a multitude of uses with three electric shutter doors and a WC.
First Floor: First floor brings you to a spacious lounge area with a double bedroom, ideal for weekend guests and also could be used as a den for children to spend time with their friends. This detached garage has the convenience of a guest WC and has ample power points.
Garden Details: The front and rear gardens are impeccably maintained and beautifully landscaped with mature hedging, flower beds, mature trees & shrubbery.
This tranquil haven is a beautiful place for relaxing away from the hustle and bustle of everyday life. Explore further into the garden and you will find a beautiful water feature and seating areas ideal for entertaining. The stylish paved patio area provides a fantastic outdoor entertaining space, perfect for al-fresco dining & family gatherings.
This sun filled south facing rear garden is predominantly laid out to lawn and is bordered by mature trees and shrubbery, giving a high level of privacy, and enjoying wonderful views over the surrounding countryside. A gravelled driveway leads up to the south facing property, offering ample parking to the front, and providing access to the two-storey garage.
- Number of bedrooms:
- 7
- Total square:
- 340 m2
- Number of beds:
- 7


Comments
There are no comments yet
Leave a Comment